
配重式全电动液压小吊机介绍:
* 配重式全电动液压小吊机采用全电动驱动,集液压升降与行走功能于一体,配备高性能液压泵站与大容量免维护电池组,续航持久,运行稳定可靠。
* 配重式全电动液压小吊机整机基于平衡重结构设计,内置配重箱,结合电动液压油缸实现平稳起升,确保吊运过程安全、稳定。
* 配重式全电动液压小吊机提供五档起重能力调节,覆盖173kg/225kg/330kg/435kg/650kg多种工况需求,适应性强。
* 配重式全电动液压小吊机配备紧急制动安全系统,设有一键急停按钮,操作安心,防护到位。

配重式全电动液压小吊机应用领域:
配重式全电动液压小吊机广泛应用于汽车制造、电池生产、厂矿车间、模具吊装、物流装卸、冶金化工等多个工业场景,助力高效物料搬运。

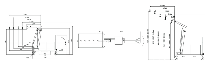
配重式全电动液压小吊机尺寸:

配重式全电动液压小吊机参数:
吊机起升方式 | 电动 |
每档对应吊臂长度(mm) | 930 | 1210 | 1500 | 1800 | 2080 |
每档对应载荷(kg) | 650 | 435 | 330 | 225 | 173 |
每档对应吊钩离地高度(mm) | 1915 | 2060 | 2210 | 2365 | 2503 |
每档吊钩高时对于的吊钩到前端距离(mm) | 80 | 325 | 565 | 825 | 1075 |
吊臂水平状态吊钩离地高度(mm) | 1480 | 1480 | 1480 | 1480 | 1480 |
吊臂水平状态吊钩到前端距离(mm) | 337 | 625 | 920 | 1220 | 1500 |
电池(V/Ah) | 12/80*2 |
充电器(V/A) | 24/15 |
车身尺寸:长宽高(mm) | 1740*910*1630 |
脚轮直径PU(mm) | Ø180 |
产品净重(kg) | 468 |
泵站参数 | 24V/2.5kw |
驱动轮参数 | 1.2kw |
驱动轮轮面尺寸(mm) | 250*80 |
注:全电动液压小吊机参数若有改动恕不另行通知,可直接咨询我公司销售。

半电动旋转液压小吊机质保承诺:
配重式全电动液压小吊机属于烟台开发区龙海起重工具有限公司旗下品牌龙升产品,产品保质周期为1年(易损件除外),在产品保质周期内正常使用的情况下出现的质量问题,我公司可提供免费维修、免费更换配件、如因质量问题维修或更换配件仍然不能达到正常使用,可免费更换主机(产品附件以及易损件除外)由此产生的运输,维修费用由我公司承担。非质量问题我公司将收费处理,所产生的运输、维修等费用由客户承担。
温馨提示:凡是在我司购买的配重式全电动液压小吊机严禁客户私自改装,改装后的产品不享受售后质保,有问题需客户自行承担。